内蒙古运管局大院 住宅
新城 鼓楼 艺术厅北街14号艺术厅北街与星火巷交汇处西南角
- 小区均价
- 10633 元/平
- 环比
- 2.00%
- 同比
- 17.07%
- 鼓楼商圈 11737元/平
- 新城区 9728元/平
- 下降 0.91%
- 下降 9.30%
- 下降 0.68%
- 下降 7.98%
- 开发公司:内蒙古众正置业有限公司
- 建筑类别: 板楼
- 物业公司:暂无资料
- 产权结构: 暂无资料
价格走势图
城市参考均价商圈参考均价二手房参考均价
周边小区房价
呼和浩特-二手房房价地图
- 在售房源
- 周边新房

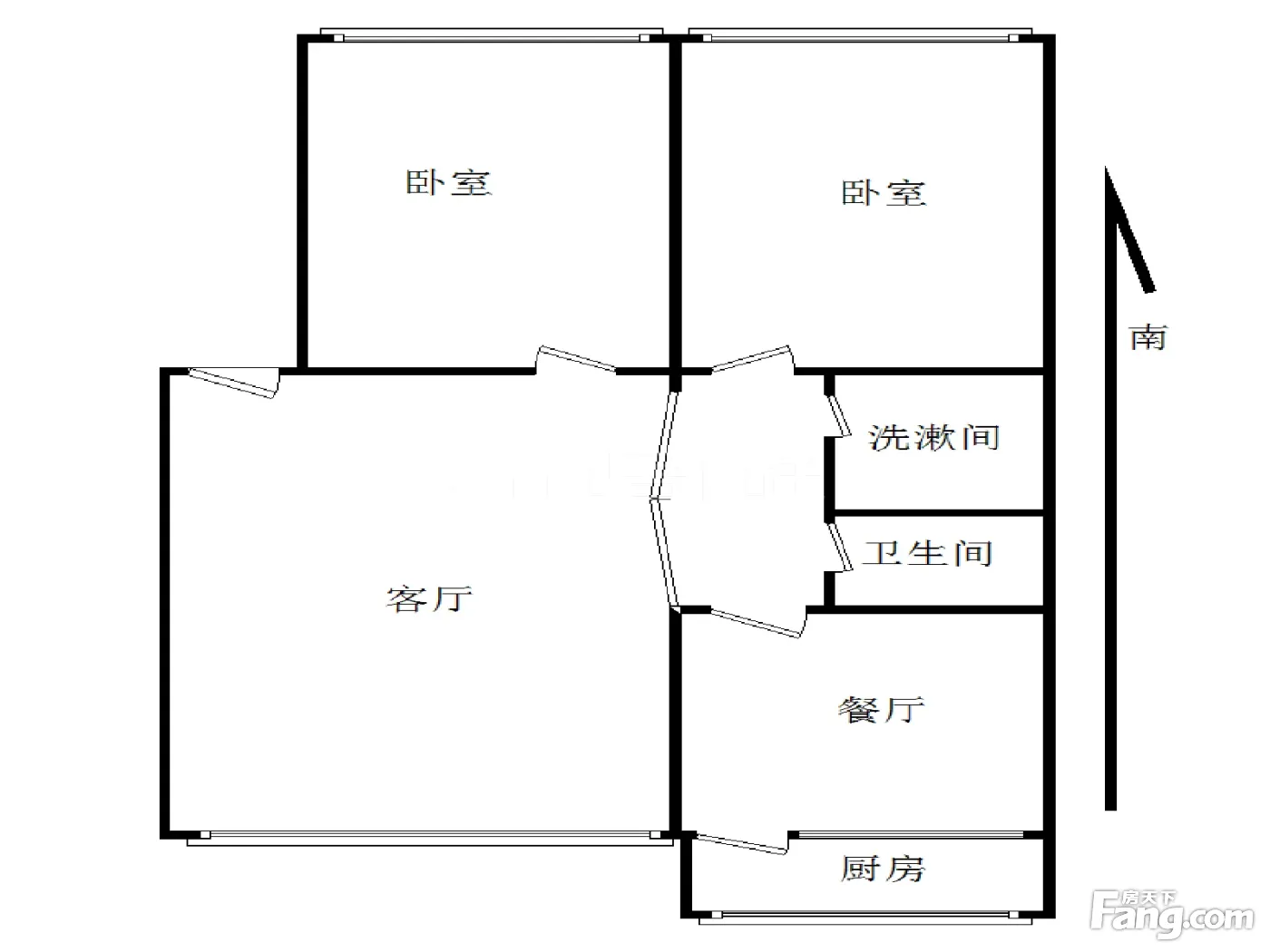
2室2厅/77.7㎡

鼓楼艺术厅北街北垣小学中间四楼115 万
2室2厅/93.47㎡

出售大面积看房提前打电话北垣200 万
3室2厅/131.0㎡








