鼎盛国际 住宅
玉泉 昭君路 呼和浩特锡林郭勒南路与世纪十八路交汇处
- 小区均价
- 7247 元/平
- 环比
- 0.31%
- 同比
- 10.32%
- 昭君路商圈 暂无均价
- 玉泉区 暂无均价
- 开发公司:内蒙古鼎盛华青房地产开发有限公司
- 建筑类别: 板楼
- 物业公司:霞光公司
- 产权结构: 鼎盛国际普通住宅产权为70年
价格走势图
城市参考均价商圈参考均价二手房参考均价
周边小区房价
呼和浩特-二手房房价地图
- 在售房源
- 周边新房

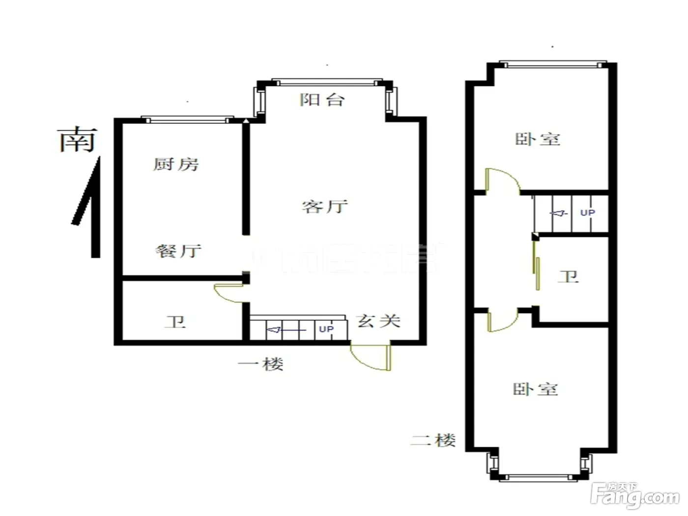
2室1厅/89.76㎡

鼎盛国际东区 一楼可做生意66 万
2室2厅/98.0㎡

鼎盛国际复式楼上下98平房东急售毛坯随意装修32.8 万
2室1厅/49.0㎡

鼎盛国际复试内大看房方便45 万
2室2厅/56.0㎡
小区成交房源 查看全部>









